Хэрэглэхгүй зүйлээ зарж, хэрэгтэй зүйлдээ зарцуул.

Үл хөдлөх зарна АОС, хаус, зуслан

Үзсэн:232
Үнэ тохиролцоно

Газрын хэмжээ:
1400  м2
Талбайн хэмжээ:
136  м2
Өрөөний тоо:
Цонх:
Вакум 
Хаалга:
Бүргэд 
Тагт:
тагтгүй 
Халаалт:
Цахилгаан 
Гараж:
байхгүй 
Лизинг:
Лизинггүй 
Бартер:
Бартертай 

Тайлбар

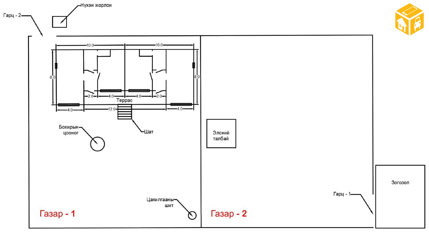
Хаяг: СБД, 19-р хороо, Шарга морьт, Модон завод зуслан

Зай: Хотоос 21 км зайтай, үүний 3 км нь шороон зам байна.

Газрын хэмжээ: 1400 м2 буюу 2 айлын газар, эзэмших гэрчилгээтэй /2033-2035 он хүртэл/, Хойноо болон зүүн урдаа 2 ширхэг орц гарцтай,

Газрын захирамж: Дүүргийн засаг даргын 2020 оны 04-р сарын 21-ний өдрийн А/146 тоот шийдвэртэй.

Газрын нэгж талбарын тоот: Айл – 1 /1462002203/, Айл – 2 /1462005470/

Байшин нь залгаа ихэр байшин бөгөөд нэг байшингийн талбай 68 м2, нийт талбайн хэмжээ 136 м2 болно.

Канад технологиор баригдсан, урагшаа болон баруун зүүн тийш харсан цонхтой, цонх нь 3 давхар шилтэй, даацын төмөр рамтай вакум цонх, паркетан шалтай, шалны халаалт болон цахилгаан тениэр халдаг.

Байшингууд нь урдаа 12 м2 талбайтай террастай, 380В тогтой, Нэгдсэн бохирын цооногийн багтаамж 5 тн,

Хашаандаа самрын модтой, гүзээлзгэнэ, нохойн хошуу ургадаг.

95 сая-аас ярилцана. Бартер сонирхоно.

Утас: 99624262, 99285348

1 жилийн өмнө  11:29
Үзсэн:232
  • zurag
    Эрдэнэбаяр
  • Чат илгээх

    Илгээх

  • Холбоо барих: (Дугаар хархын тулд ногоон товч дээр дарна уу.)

    99624262

  • Хадгалах
    Мэдүүлэг
    Хаах
    Илгээх

Төстэй зарууд

    Мэдэгдэл

    Мэдэгдэл байхгүй байна.